FAD 2012 Award – Selected
Our desire for clarity and simplicity was the guiding factor in the refurbishment of these premises, situated in an early 20th -century building, whose varied and successive uses had concealed its original state.
These small premises in the district of Sant Gervasi, at the foot of the Putxet hill, was the space chosen by the clients for refurbishment as a dance and music studio. The premises, situated in an early 20th-century building, is a cube wedged between other buildings, with two free planes: the Ballester Street façade and the roof that is in turn the communal terrace for the building’s dwellings.
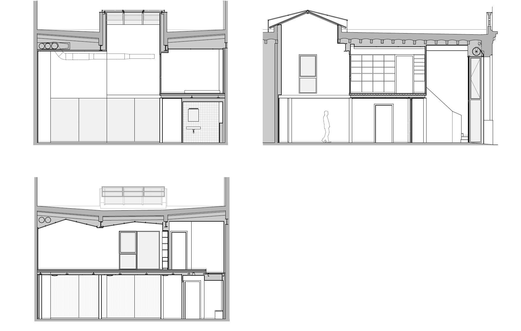
Over the years this space has successively been occupied by artisan workshops, small industries and shops, suffering highly aggressive interventions, which totally concealed its original state. After eliminating everything superfluous, an open-plan double-height box was revealed, with light entering from two sides, the roof and the façade, with a single element presiding over the space: a double-shaft wooden pillar that underpins the main roof beams.
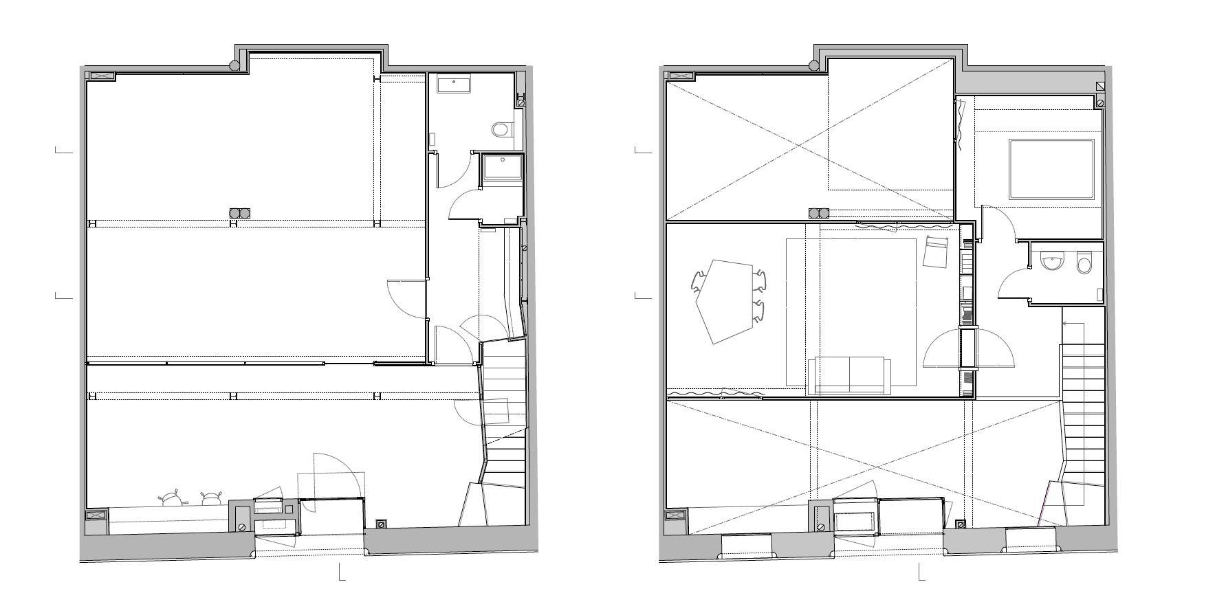
The incorporation of a new-build mezzanine meets the needs of the programme, which required a larger surface: rooms with flexible size and use and varying qualities for either dance or music, together with ancillary spaces. The mezzanine was placed in such a way that the premises would read as a whole and so that natural light would flow from one side of it to the other.
The mezzanine is understood as an individual, self-supporting element in itself. Its structure, freestanding from the rest of the building, originates in the double-shaft wooden pillar and from that point expands in an isotropic manner to create a structural grid with three equal centrelines. Access to the upper floor takes place via a wooden element that has the double function of storage unit and staircase.
The premises form a space closed in on itself, with façade openings and a roof light that barely provide views of the outside. However, its good orientation enables the cycle of natural light to blend with the artificial light throughout the day.
The few materials used have been chosen with a great deal of care. At the entrance level we find a continuous micro-cement paving in the transit areas and pine wood boards in the large hall. Starting at the staircase and covering the entire mezzanine floor, the linoleum paving in a saturated colour leads us through the rooms on this level. Both in the large ground floor hall and in the two smaller rooms on the upper level, the ceiling has been finished in “heraklith” in order to provide greater acoustic and ambient comfort.
Rigor y sobriedad son las premisas a partir de las cuales hemos rehabilitado este local, situado en un edificio de principios del siglo XX, cuyos diversos y sucesivos usos habían acabado por ocultar su estado original.
Un pequeño local en el barrio de Sant Gervasi, a las faldas del Turó del Putxet, fue el espacio escogido por los clientes para su estudio de tai chi y música. El local, situado en un edificio de principios del siglo XX, es un cubo encajonado entre otros inmuebles, con dos planos libres: la fachada a la calle Ballester y la cubierta que, a su vez, es la terraza de las viviendas del propio edificio.
A lo largo de los años, este espacio ha sido ocupado sucesivamente por talleres artesanales, pequeñas industrias y comercios, sufriendo intervenciones muy agresivas que escondieron totalmente su estado original. Después de eliminar todo lo superfluo, apareció una caja diáfana de doble altura, con entrada de luz en sus dos extremos, una cenital y otra en fachada, y con un único elemento presidiendo el espacio: un pilar de dos fustes de madera que recoge las jácenas de la cubierta.
La incorporación de un altillo de nueva planta responde a las necesidades del programa, que requería mayor superficie: salas de tamaño, uso y calidades diversas y flexibles para la danza o la música, así como espacios anexos. Se decidió colocar el volumen del altillo de manera que se mantuviera una lectura conjunta del espacio y que la luz fluyera de un lado al otro del local.
El altillo se proyectó como un elemento individual y autoportante en sí mismo. Su estructura, exenta del resto del edificio, tiene su origen en el doble pilar de madera y desde este punto se expande de forma isotrópica creando una cuadrícula estructural de tres crujías iguales. El acceso a la planta superior se efectúa a través de un mueble de madera que posee la doble función de contenedor y escalera.
El local es un espacio cerrado en sí mismo, con aberturas a fachada y un lucernario que apenas permiten vistas al exterior. No obstante, su buena orientación hace que el ciclo de la luz natural se vaya fundiendo poco a poco con la luz artificial a lo largo del día.
Los materiales utilizados son pocos pero precisos. En el nivel de la entrada encontramos un pavimento continuo de microcemento en las zonas de paso y de tarima de pino en la sala grande. Arrancando ya la escalera y en toda la planta altillo, el pavimento de linóleo, de un color saturado, nos conduce a través de las estancias de este nivel. Tanto en la sala grande de la planta baja como en las dos más pequeñas del nivel superior, el acabado del techo es de “heraklith” con el objeto de conseguir un mayor confort acústico y ambiental.
Barcelona, 2009-2011
Photographer, Lourdes Jansana Ferrer











