DIAGONAL ROOF ADDITION
FAD 2005 Award – Selected
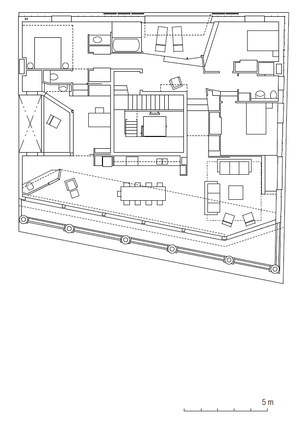
This roof addition sits atop a building on Avinguda Diagonal at the edge of Barcelona’s 19th century Eixample. Trapezoidal in plan, it replaces a derelict doorman’s apartment.
The project met with significant Heritage regulations, and the fact that a bold mansard-style roof was granted planning permission speaks well of the Eixample’s Quality Review Commission.
The new built volume has three facades, an unusual but fortuitous situation. Sandwiched between taller buildings, it sits back from the northeast-facing balustrade on Avinguda Diagonal, turning the corner obliquely, visually softening the volume. Its massing is most apparent on the rear façade. A faceted, zinc-clad mansard roof conceals the staircase and lift shaft as well as a prominent light monitor, bringing natural light into the heart of the plan.
The distribution of rooms around the stairwell – a conventional program arranged with a minimum of dedicated circulation space – is enhanced to include a southern terrace creating a void in the courtyard facade. This terrace and three others of varying size and orientation, cut out of the trapezoidal plan, act as outdoor rooms, each with a distinct character, generating views and creating private realms.
Esta remonta se encuentra en la Avenida Diagonal, en un edificio del año 1900, en el Ensanche barcelonés del siglo XIX. De planta trapezoidal, la vivienda de nueva construcción reemplaza un apartamento precario y en desuso del portero.
El proyecto tenía que cumplir con importantes regulaciones de Patrimonio, y el hecho de que se concediera un permiso para una cubierta de zinc, estilo mansarda, habla bien de la Comisión de Calidad del Ensanche.
El nuevo volumen construido, igual que el edificio, tiene tres fachadas, un hecho inusual pero fortuito. Flanqueado por edificios mucho más altos, este volumen se coloca a poco más de un metro detrás de la balaustrada existente orientada al noreste en Avenida Diagonal, girando la esquina oblicuamente, suavizando visualmente el volumen. Su volumetría es más evidente en la fachada posterior. Un techo facetado y revestido de zinc oculta la escalera y el hueco del ascensor, así como un gran monitor de luz que lleva la luz natural al corazón de la vivienda.
La distribución de las habitaciones alrededor del hueco de la escalera — un programa convencional organizado con un mínimo de espacio de circulación dedicada — se optimiza para incluir una terraza (o loggia semi-cubierta) en la fachada del patio. Esta terraza y otras tres de varios tamaños y orientaciones, recortadas en el plano trapezoidal, actúan como habitaciones al aire libre, cada una con un carácter distinto, generando vistas y creando espacios privados.
Barcelona, 2001-2004
Photographer, Michael Moran









