In collaboration with Sergison Bates architects
FAD 2012 Award – Finalist
Premis d’Arquitectura de les Comarques de Girona 2012- Selected
ECOLA Award 2012 – Selected
Catalunya Construcció 2012 CAATEEB – Selected
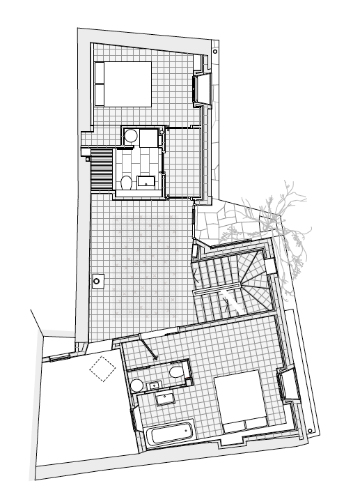
This new house replaces a two storey dwelling and adjoining ruined structure on a small and narrow street in the historic seaside town of Cadaqués, in Catalonia. The building plot has a stepped frontage to the street and is otherwise locked-in on all other sides by adjoining buildings. This step in plan gives two different geometries, which have provided the basis for the volumetric organisation of internal spaces. The new two storey construction follows the alignment of the street and surrounding party walls but in the south-west corner the building line is pulled back to create a patio at first floor level. A one-sided pitched roof encloses the volume and as it extends to accommodate the changing geometry of the street frontage it forms two eaves lines at different heights, which has the effect of diminishing the overall volume of the house. The building rests on a concrete plinth, which steps in height and plan to create a planter and a stoop at the natural point of entry at the juncture of the two geometries.
Stone, clay tiles and structural elements have been reclaimed from the existing buildings to use in the new construction. A self-supporting stacked stone wall forms the main facade with other external walls faced in roughcast render. Windows of varying size are placed informally but given a finer compositional character by the added architraves, which frame the openings and create aligning relationships between them. Windows are placed on the inside face of the wall and the reveals are angled giving emphasis to the feeling of weight and visual depth of the surface. Ceramic gutters and downpipes, rendered architraves, windows and metalwork are all painted white to give a homogenous and distinctive appearance to the building while also adhering to the stringent municipal regulations imposed on the historical centre of Cadaqués governing building heights, window proportions and material colour. In these ways the project may be seen as an act of repair to the old town mediating with the context and creating a renewed identity to both the narrow street and the wider backdrop to the seafront.
Internally the house is organised on three floors of approximately sixty square metres each with two wooden structured mezzanines within the roof space. Two hall-like rooms form the heart of the house. The entrance hall, one step below the street level, provides a generous arrival space. An internal window overlooks a top-lit void over the basement and doors lead to two bedroom suites. The main hall at first floor level is a five-sided room and here the geometrical tension of the site can be sensed with a diagonally modelled ceiling and obliquely inclined fireplace. Strong midday sunlight enters from a small, high-level window. Adjoining the hall is a third bedroom suite and wooden stair to a mezzanine room in one direction and the kitchen in the other. The kitchen, one step lower than the hall, opens to the patio, which is enclosed by high walls on all sides and overlooked by the distinctive profile of a well-known heritage listed house. Above the kitchen lies the second mezzanine room, accessed via a wooden ladder with an attic-like hatch. From this room a privileged view of the main bay, church, sea and mountains is given. A vaulted masonry stair connects all principal floors and extends down below ground to a stone cave, utility room and a square sided room of double height with a single rooflight providing a dramatic lighting effect.
Few materials are used internally but all are detailed with pragmatic usefulness and conceptual rigour. Floors are tiled throughout and in each of the main halls a patterned tile is arranged to make a central ‘carpet’. White marble is used as a transitional element between materials, as a facing to cills and steps or as a protective lining to fireplace and kitchen. Selected stone walls are left exposed and all others have a rough plastered finish all painted white. Wooden boarding for the mezzanine structures are closely butted and painted in mute colours, door frames are placed on the face of openings with thick reveals and handles are of weathered bronze. Raw linen curtains are used extensively to soften the acoustic of rooms and provide privacy and containment.
This house of many rooms, some of un-programmed use, has been made to support the shared ownership of two families who will use it intermittently throughout the year. It is a house of comfort and leisure and seeks to engage with the ideas of critical regionalism explored by the lineage of architects who worked in Cadaqués from the 1950’s and 1960’s including José Antonio Coderch, Frederico Correa, Alfonso Milá, Peter Harnden and Lanfranco Bombelli, Text S. Bates.
La casa se asienta encima de un antiguo bodega salvando una bóveda ejemplar, único elemento rescatado de una construcción anterior en ruinas, en un solar retranqueado a la calle y enclaustrado por construcciones. Este retranqueo da lugar a dos geometrías, base para la organización volumétrica de los espacios. La casa ocupa toda la parcela, alejándose de las medianeras únicamente en la planta primera para crear un patio. En la unión de las dos geometrías se encuentra la entrada. Piedra, tejas y vigas se han recuperado. La fachada es de mampostería y las medianeras acabadas con revoco. Las ventanas, situadas de manera informal, se enmarcan con recrecido de mortero, dotando a la composición de un carácter más refinado. Todo esta pintado de blanco, a la vez homogéneo y distintivo. Puede verse como un acto de restauración del casco antiguo mediando con el contexto y creando una renovada identidad. La casa se organiza en tres niveles y dos altillos de madera. Dos “salas-hall” son el corazón de la casa. El vestíbulo de entrada proporciona un generoso espacio de llegada desde donde una ventana interior mira hacia el espacio de doble altura del sótano, iluminado cenitalmente. En el primer piso la sala principal es un espacio de cinco lados donde la tensión geométrica del lugar se nota en la línea en diagonal del cielo raso y los planos inclinados de la chimenea. Una escalera de “volta” conecta estos dos niveles y el “celler” con bóveda de piedra posiblemente del s. XVIII. Los materiales usados en el interior son pocos y escogidos con rigor: pavimento de mosaico hidráulico, mármol blanco como elemento de transición, paredes de piedra vista o enyesadas y pintadas blancas. La madera esta pintada con colores tenues. Es una casa que pretende participar de las ideas del regionalismo crítico explorado por los arquitectos Coderch, Correa-Milá y Harnden-Bombelli.
Cadaqués, 2009-2011
Photographer, David Grandorge




















