CASA VILLAVECCHIA RESTORATION
Original project by Federico Correa and Alfonso Milá, 1955.
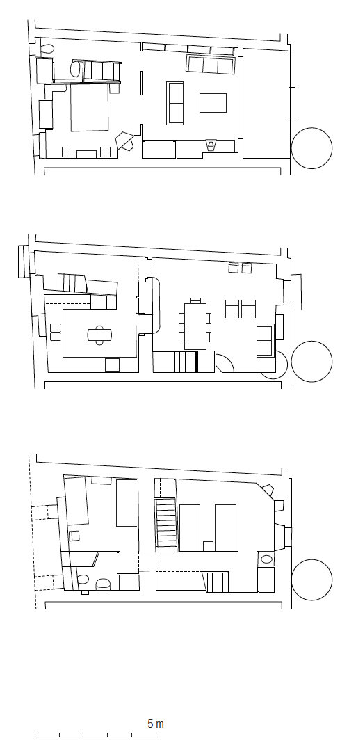
In 2010, due to the need to substitute termite-ridden wooden beams, we undertook an extensive but practically imperceptible restoration of Casa Villavecchia. The original 1955 project by the architects Alfonso Milá and Federico Correa, disciples and collaborators of José Antonio Coderch, involved the adaptation of a narrow fisherman’s house. Among other virtues of their scheme, was the notable addition of an upper floor sea-facing loggia.
We did an exhaustive survey, similar to the one later done for the Coderch-Milá house, also in Cadaqués, in order return it to its original state. Exposed wooden beams in the bedrooms were substituted one by one with steel beams painted an identical blue in a reinterpretation of their original formal attributes, and in place of concealed wooden roof beams, concrete beams were used, all without damaging a single ceiling vault or roof tile.
Cadaqués, 2013
Photographer, Lourdes Jansana Ferrer















