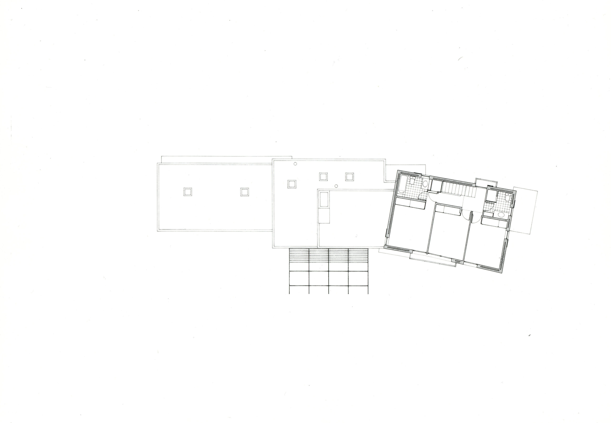
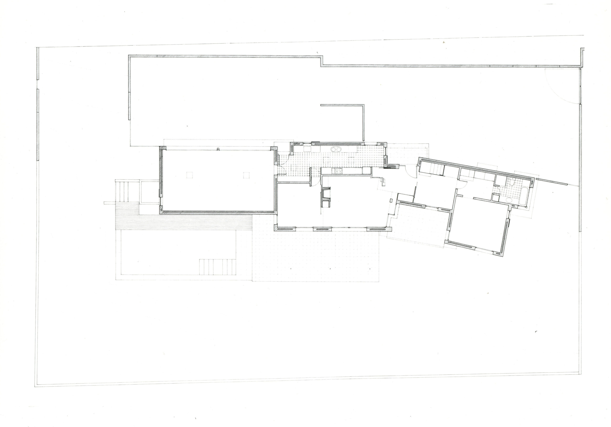
CASA VALLDOREIX

Valldoreix, Barcelona. 1990-1992

Photographer, Michael Moran

Resumen de privacidad

Esta web utiliza cookies para que podamos ofrecerte la mejor experiencia de usuario posible. La información de las cookies se almacena en tu navegador y realiza funciones tales como reconocerte cuando vuelves a nuestra web o ayudar a nuestro equipo a comprender qué secciones de la web encuentras más interesantes y útiles.

Para obtener más información sobre estas cookies y el procesamiento de datos personales consulta nuestra Política de Privacidad y Cookies.