Premis d’Arquitectura de les Comarques de Girona 2023 – Selected (Shortlisted)
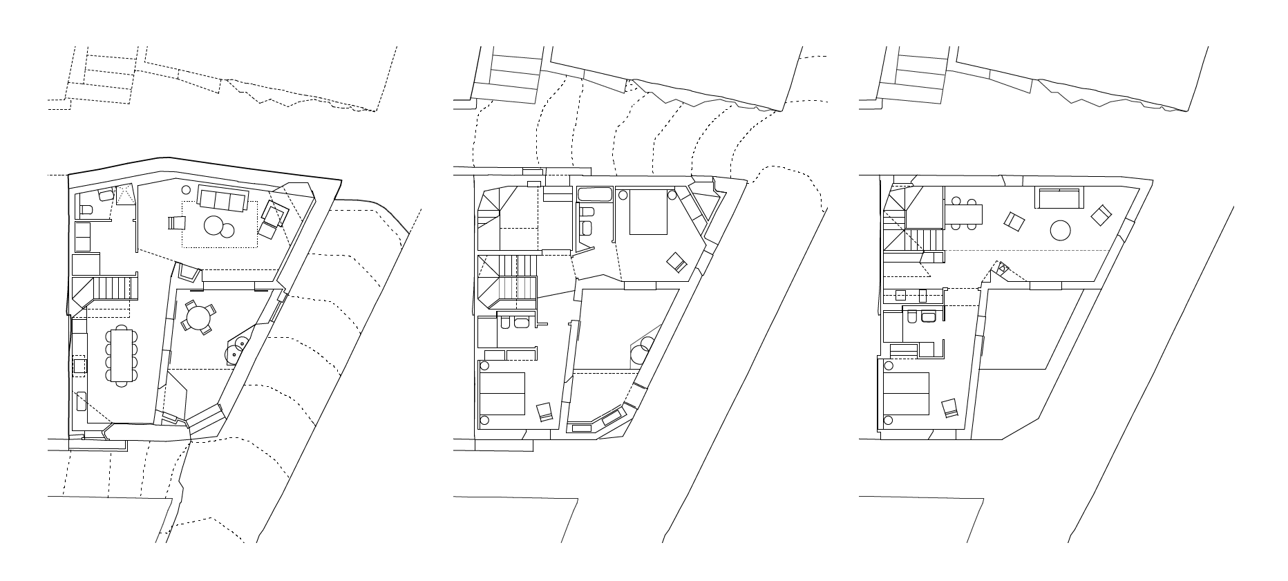
The house is built on one of the last remaining vacant lots in the historic centre of Cadaqués. The end of a block of terraced houses, the site was defined by a tall party wall and semi-decayed stone perimeter walls on three very steep stone-paved streets. The remnants of a house that had disappeared centuries ago, it was used for generations as an impromptu kitchen garden and chicken coop. A wide arched doorway at the site’s corner intimated former habitation.
An L-shaped plan is inscribed within the existing perimeter walls, enclosing a patio through which one enters the house. The restored walls, left unpainted in the patio, serve as a backdrop to this semi-covered space. Seen as an outdoor room, it is surrounded by a kitchen with a staircase as backdrop, and a living room, anchored by a fireplace, that receives additional natural light from a clerestory window in an otherwise dark corner.
Conceived as a house to be used either as a single unit over three-storeys, or as two separate upper and lower units, a second entrance is located at the highest of the three streets, in a newly built stone-clad brick wall. Two separate staircases along the party wall, generously scaled in height, have been designed according to their role in the house’s dual nature with an oversized door at the first-floor landing left open or closed accordingly. A double-height hall containing a painted timber staircase, lit by a high corner window, leads to a second floor. Here, a living-dining room with a sea view over neighbouring rooftops is flanked by a small kitchen.
The irregular plan geometry – the location of stairs, fireplaces, fenestration or ceiling contours and cut-outs – all play a role in articulating a series of spaces contained within a volume inscribed in a polygonal site with three street facades and three patio facades. A six-sided room, a chamfered lightwell, or an almost triangular patio, unapologetically bear the traces of the house that once was, a presence still palpable in the mineral urban setting in which the new building sits.
La casa està construïda en un dels darrers solars buits del casc antic de Cadaqués. Al final d’una illa de cases tradicionals en filera, el solar estava definit per una alta paret mitgera i per tres imponents murs perimetrals de pedra semi-derruïts –restes d’una casa desapareguda fa segles– donant façana a tres carrers empedrats, cadascun amb fort pendent. El solar va ser utilitzat durant generacions com a hort improvisat i galliner. Una porta ampla en arc a la cantonada del solar, i els antics suports per als caps de bigues de fusta, donaven a entendre que havia estat habitat.
Partint de la geometria irregular del solar, es busca una volumetria i una composició de façanes amb la capacitat de respondre a l’entorn urbà immediat i alhora dotar a la casa d’un espai exterior que esdevindrà pati. La ubicació de les escales, les xemeneies, la composició de les finestres o els contorns dels sostres pretenen enriquir i articular una casa, el volum de la qual està encaixat en un polígon.
Dins dels murs perimetrals existents (que per normativa s’havien de mantenir) s’inscriu una planta en forma de L que amaga un pati pel qual s’accedeix a la nova casa. Els murs de pedra restaurats, deixats sense pintar en la cara del pati, serveixen de teló de fons a aquest espai parcialment cobert; concebut com una habitació exterior, està flanquejat per la cuina, l’escala principal i una sala d’estar, ancorada per una xemeneia, i que rep llum natural addicional des d’una finestra alta en el racó més fosc d’aquesta planta soterrada.
Dues escales de generosa alçada, s’ubiquen al llarg de la mitgera. La primera escala dóna accès a la planta primera que conté dues habitacions i un vestíbul de doble alçada. Aquest vestíbul allotja una segona escala-moble de fusta pintada, i està il·luminat per una finestra alta a la cantonada que ens condueix a la planta superior. Aquí, un saló, acompanyat per un petit office i una habitació, gaudeix de vistes al mar sobre les teulades veïnes.
Una habitació de sis costats, una lluerna aixamfranada i un pati gairebé triangular, sorgeixen de les empremtes de la construcció original que ha estat una presència palpable en el caràcter del nou edifici.
Cadaqués, 2016-2022
Photographer, Lourdes Jansana Ferrer





















