GROUND FLOOR AND LOFT CONVERSION
The residential building on the narrow Ballester street dating from 1900 is part of a double lot property shared with its neighbour, a much larger corner building on Avinguda de la República Argentina, built five years earlier.
Our original renovation of the building, almost twenty years ago, consisted of modifications to two flats: the restoration of carpentry and modernisation of kitchens, bathrooms and services. Decorative facade esgrafiados were brought back to life. The double-height entry vestibule, hidden for years by a makeshift shoe repair shop, revealed a floral-motif ceiling fresco later enhanced with an oversized mirror. Finally, a two-storey commercial space devoid of daylight was fitted with new light wells and stairs.
After years of occupancy of this “commercial” space by professional tenants – an advertising company and independent film producers – and in a real estate environment in which housing is in demand and certain streets are being “pacified” (made semi-pedestrian) our client had us study the viability of converting the two-storey space for residential use. The change from commercial to residential can more readily be made if it fits into the fabric of the neighbourhood.
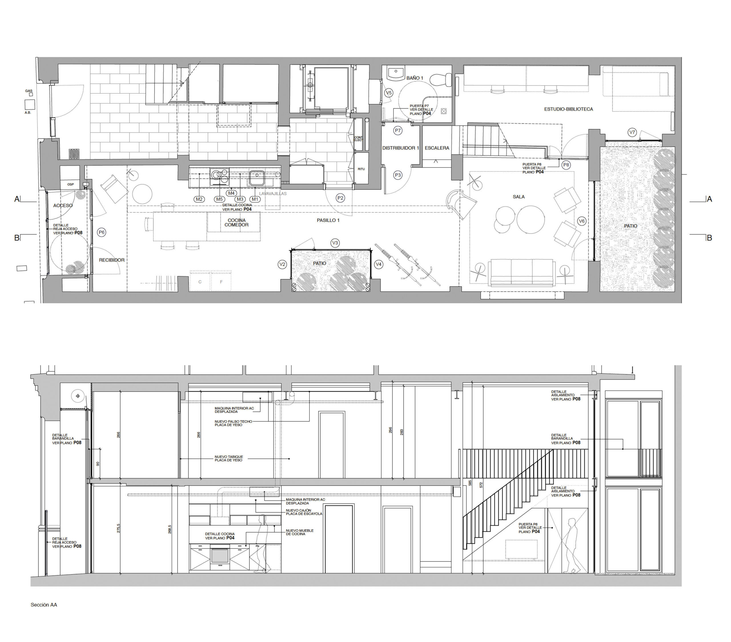
The scheme sought to solve the basic elements of a domestic program – kitchen-dining, common areas, bedrooms – while maintaining the most salient aspects of a former light industrial space: exposed structural elements, unusually high ceilings in certain areas and two generous two-storey light wells (potential plant-filled gardens). To this end, corridors and rooms ‘per se’ were kept to a minimum. A wooden privacy screen, of the same material as the buildings communal front door just metres away, was set in front of the former storefront glazing, allowing the passer-by just a mere glimpse of the deep ground floor space whilst providing a domestic threshold for the inhabitants of the home within.
El edificio residencial de la estrecha calle Ballester que data de 1900 forma parte de una propiedad de doble lote compartida con su vecino, un edificio de esquina mucho más grande en la Avinguda de la República Argentina, construido cinco años antes.
Nuestra renovación original del edificio, hace casi veinte años, consistió en modificaciones en dos viviendas: restauración de carpintería y modernización de cocinas, baños y servicios. Los esgrafiados decorativos de fachada volvieron a cobrar vida. El vestíbulo de entrada de doble altura, oculto durante años por un taller de reparación de calzado improvisado, reveló un fresco en el techo con motivos florales que luego fue realzado con un espejo de gran tamaño. Finalmente, un espacio comercial de dos plantas sin luz natural fue equipado con nuevos pozos de luz y escaleras.
Después de años de ocupación de este espacio “comercial” por inquilinos profesionales –una empresa de publicidad y productoras cinematográficas independientes- y en un entorno inmobiliario en el que hay demanda de vivienda y determinadas calles se están “pacificando” (convirtiéndolas en semi-peatonales) nuestro cliente nos hizo estudiar la viabilidad de reconvertir el espacio de dos plantas para uso residencial. El cambio de comercial a residencial se puede realizar más fácilmente si encaja en la estructura del vecindario.
El esquema buscaba resolver los elementos básicos de un programa domestico: cocina-comedor, áreas comunes, dormitorios, manteniendo los aspectos más destacados de un antiguo espacio de industria ligera: elementos estructurales expuestos, techos inusualmente altos en ciertas áreas y dos generosos patios de luz (potenciales jardines llenos de plantas). Para ello, los pasillos y las habitaciones “per se” se redujeron al mínimo.
Frente al antiguo acristalamiento del escaparate del local se colocó una mampara de privacidad de la misma madera que se había empleado hace años para la puerta de entrada común del edificio, a pocos metros de distancia. Dicha mampara permite al transeúnte apenas un vistazo del profundo espacio de la planta baja y al mismo tiempo proporciona un umbral doméstico para los habitantes del nuevo hogar.
Carrer Ballester 67 CONVERSIÓN DE LOCAL EN PLANTA BAJA A VIVIENDA
Barcelona, 2022-2023
Photographer: Lorenzo Kárász





